Mögliche Interaktionen




Exposé Gewerbeimmobilie
Chiffresys_215050
BezeichnungVerkauft_Moderne trifft Denkmal! Bürohaus Moerser Straße 72, 458 m²
AdresseMoerser Straße 72, 40667 Meerbusch
Bild01.jpg
Detail-AnsichtDetail-Ansicht
© OpenStreetMap contributors
Überblick
ObjektartBüro und Praxis
Nutzfläche385,0 m²
VermarktungsartKauf
Kaufpreis (gesamt)960.000,00 €
Verfügbarkeitnach Absprache
Objektbeschreibung
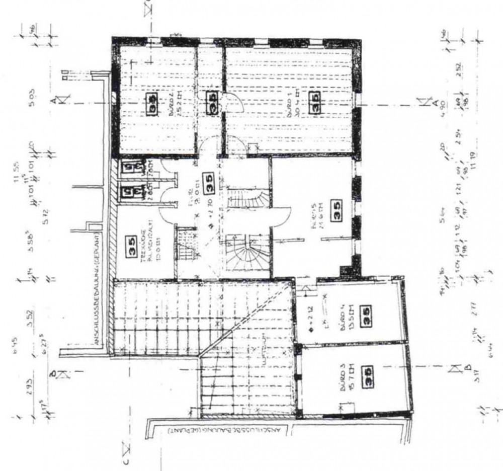
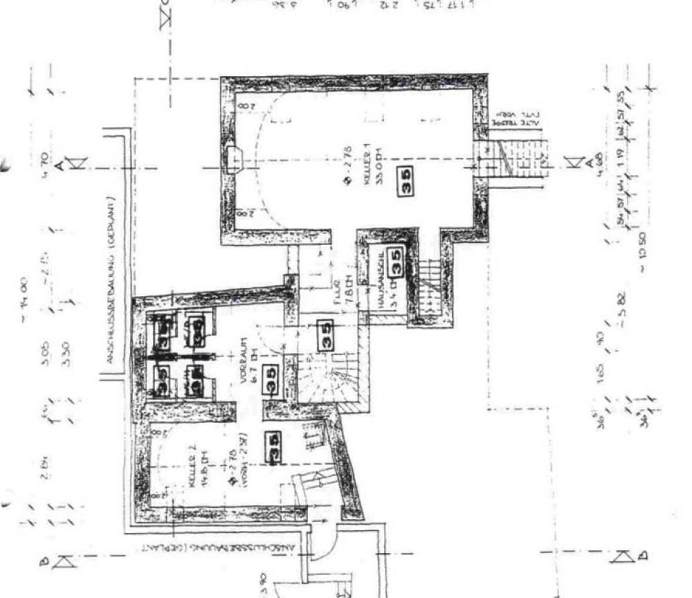
Das Erdgeschoss bietet einen offenen Eingangsbereich, drei große Räume, einen Wintergarten und eine Küche. Eine offene Stahltreppe führt ins Ober- und Dachgeschoss. Das Obergeschoß verfügt über vier großzügige Räume, wobei ein Zimmer ein Durchgangszimmer ist. Ein fünfter Raum bietet sich als Kopierraum an. Weiterhin sind auf dieser Etage zwei separate Toiletten für Damen und Herren vorhanden. Im Dachgeschoss befinden sich zwei miteinander verbundene Räume. Das Untergeschoss bietet mit seinem alten Kellergewölbe viel Stauraum, zwei separate Toiletten und einen direkten Zugang zur Tiefgarage. Hier befinden sich 7 TG-Stellplätze, die ebenfalls erworben werden können.

Die Immobilie ist vermietet. Das Mietverhältnis kann beidseitig mit einer Frist von 3 Monaten gekündigt werden. Die Netto-Kaltmiete beträgt € 5.750,- pro Monat.
Details und Ausstattung
Baujahr1700
Grundstücksfläche458,0 m²
Nutzfläche385,0 m²
Anzahl Stellplätze7 Tiefgaragenplätze
Besondere AusstattungZur Ausstattung zählen:
– DV Verkabelung
– Einbauküche
– Klimaanlage

In der Tiefgarage sind sieben Stellplätze verfügbar. Der Preis pro Stellplatz beträgt € 20.000,- zzgl. Maklerprovision.
Kaufpreis (gesamt)960.000,00 €
Kaufpreis (pro m²)2.493,51 €
ProvisionJa
Lage und Verkehrsanbindung
OrtMeerbusch, Rhein-Kreis Neuss
LageInnenstadtlage 1B
LagebeschreibungDie Immobilie befindet sich mitten in Meerbusch-Büderich, angrenzend an das noble Villenviertel "Alt Meererbusch". Der charmante dörfliche Charakter und die gute Infrastruktur prägen die besondere Lebensqualität in Meerbusch, weshalb sie zu den begehrtesten und wertigsten Wohnlagen in direkter Nachbarschaft zur Landeshauptstadt Düsseldorf zählt.

Entfernung zu:
Autobahn3 km
Bahn23 km
Flughafen12 km
ÖPNV0,1 km
Anbieter
Claudia Evertz Immobilien
Claudia Evertz
Anton-Holtz-Str. 27
40667 Meerbusch
Tel: 02132 5811081
info@evertz-immobilien.de
Weitere Bilder